New For Sale

Multi Unit Opportunity

Wesselényi street 71, Budapest, 7th. district

155 m² Size
5 Bedrooms
5 Bathrooms

About This Property

For our new project, what includes 5 flats, we looked for a location and apartment that meets all requirements, like it should be close to the downtown, but still quiet, easily accessible, easily parkable, and many of the city’s sights are within walking distance. Budapest’s largest green area, Városliget, Hősök Tere, Andrássy út, and several universities nearby.

The properties are located on the first floor of a building on a quiet street, which was completely renovated in 2025 with quality materials.
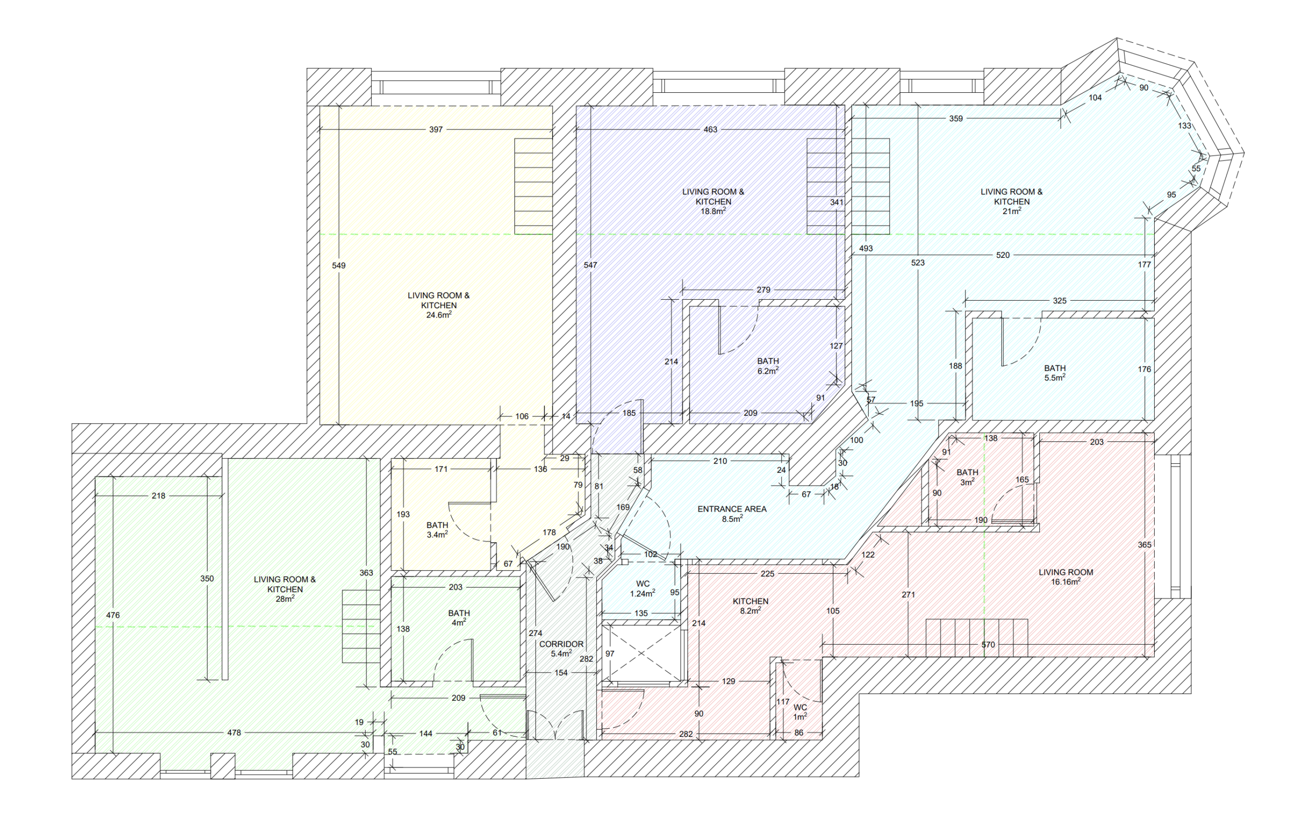
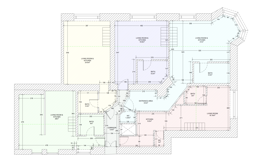
The property includes 5 smaller apartments, all with separate entrances and meters.
The entrances to the apartments are accessible through a common indoor corridor.
The properties can be purchased together or separately.

The total renovation includes the following:

  • New water pipe system (incl. water heating system)
  • New heating system
  • New air conditioning
  • New electricity network (cables, switches, entire electricity box)
  • Renovated walls and ceilings
  • New floor
  • Bathroom and toilet full re-design
  • New entrance door and windows
  • Furnishing included
  • New gallery installations. (13m2 to 17m2)

Layout Plan

Layout Plan

Location

Wesselényi street 71, Budapest, 7th. district

Interested in this property?

Fill out the form and we'll get back to you shortly.

    Property Document

    Download the detailed property brochure or floor plan.

    Investment Brochure